|
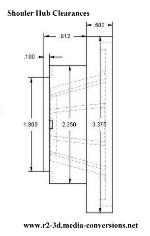
This is a cross section drawing of the Shoulder Hub shown on the right. What I'm trying
to illustrate is that there's a lot of dead space in the bottom outside edge of the
shoulder hub. |

Here is a version of the Shoulder Hub with a .1 edge removed from the
bottom to enable it to clear the mounting bolt circle. In addition,
I've added 4 holes suitable for installing .125 in. magnets to hold the
hub in place. |